← Guide rénovation appartement Paris

Tarifs & budgets 2025

Prix rénovation appartement Paris — le vrai coût au m²

Tableau des prix de rénovation d'appartement à Paris, Vincennes et Saint-Germain-en-Laye — par arrondissement, type de bien et niveau de prestation. Données issues de projets réels menés par Teresa Lombardo, architecte DPLG / HMONP.

1 200 – 2 500 €/m² en moyenneDevis gratuitHonoraires 10–15 % HT

Réalisation

Projet type — rénovation appartement haussmannien Paris

Avant travaux — appartement haussmannien Paris — portes vitrées à double vantail, parquet ancien — Teresa Lombardo architecte DPLG Avant
État initial — appartement haussmannien non rénové
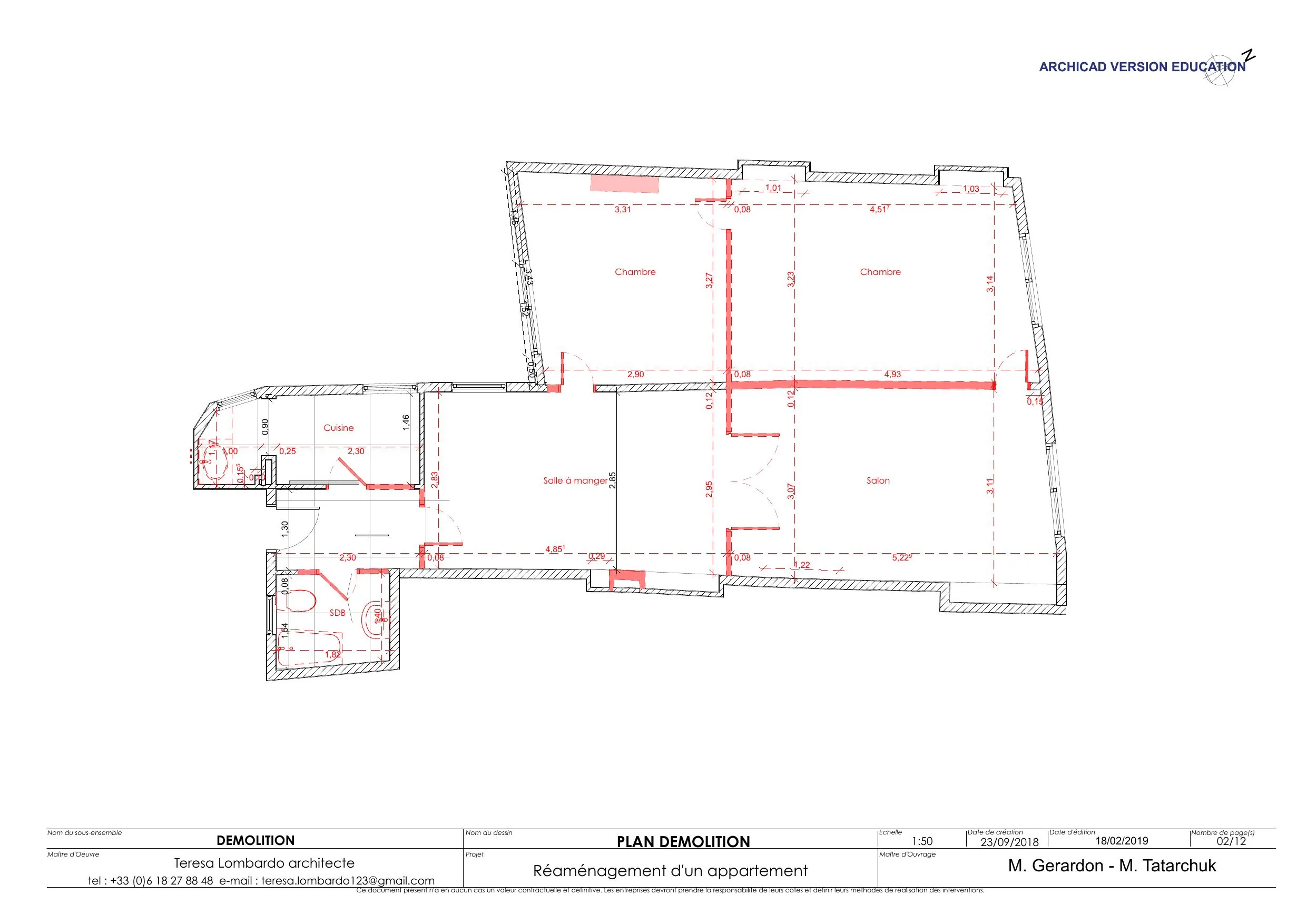
Plan démolition appartement haussmannien Paris — Teresa Lombardo architecte DPLG Plan démolition
Plan démolition — reconfiguration des espaces
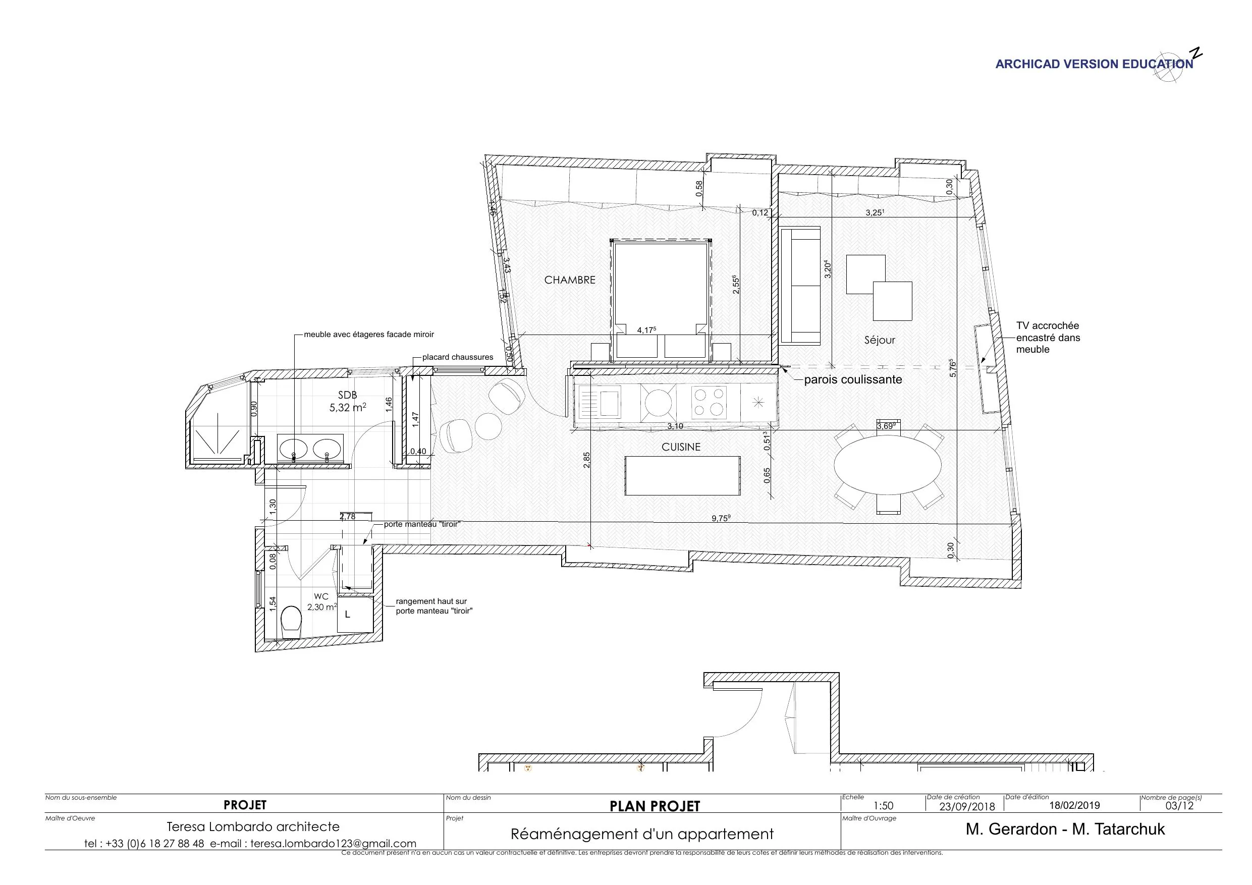
Plan projet appartement haussmannien Paris — Teresa Lombardo architecte DPLG Plan projet
Plan projet — nouvelle distribution
Pendant travaux — appartement haussmannien Paris — plomberie et cloisons — Teresa Lombardo architecte DPLG Chantier
Pendant travaux — plomberie, cloisons, électricité
Après travaux — appartement haussmannien Paris — îlot marbre vert, parquet chevron chêne, <a href=moulures — Teresa Lombardo architecte DPLG" height="1536" loading="lazy" sizes="(max-width: 480px) 400px, (max-width: 960px) 800px, 100vw" src="haussmannien-paris-apres-ilot-marbre-original.webp" srcset="haussmannien-paris-apres-ilot-marbre-original-400w.webp 400w, haussmannien-paris-apres-ilot-marbre-original-800w.webp 800w, haussmannien-paris-apres-ilot-marbre-original.webp 1024w" style="width:100%;height:220px;object-fit:cover;display:block" width="1024"/> Après
Après — îlot marbre vert, boiseries, parquet chevron
Cuisine après travaux — appartement haussmannien Paris — façades sur mesure, crédence marbre vert — Teresa Lombardo architecte DPLG Après
Cuisine — façades sur mesure, crédence marbre vert
Localisation
Paris 4e
Appartement haussmannien
Surface rénovée
80 m²
Rénovation complète
Prix au m²
1 600 €/m²
Architecte HMONP inclus
Mission
Complète
Maîtrise d'œuvre, mobilier sur mesure, aménagement intérieur

Tarifs & budgets

Prix rénovation appartement Paris — le guide complet

Le coût des travaux appartement Paris varie considérablement selon l'arrondissement, le type de bien, les contraintes patrimoniales et le niveau de prestation. Cette page compile les données réelles issues de projets menés par Teresa Lombardo, architecte DPLG HMONP, et vous permet d'estimer votre budget et d'obtenir un devis travaux Paris adapté à votre projet.

La question du coût des travaux au m² à Paris revient dans presque toutes les demandes de devis. Pour simplifier : le tarif de base (hors honoraires architecte)partement paris prix m2 de base (hors honoraires architecte) se situe entre 900 et 1 100 €/m² pour un appartement haussmannien type. Un prix m2 rénovation appartement paris en dessous de 900 € signifie généralement une intervention partielle ou des finitions premier prix. Le prix moyen rénovation appartement paris intégrant honoraires architecte, coordination de chantier et assurances se situe entre 1 400 et 1 800 €/m² — c'est le budget réaliste pour un projet parisien bien accompagné. Pour un devis travaux appartement paris personnalisé, Teresa Lombardo propose une première estimation gratuite sur la base des plans et d'une visite. Le devis rénovation paris est remis dans les 10 jours ouvrés suivant la visite, chiffré poste par poste. Le budget travaux appartement paris final est ferme sur la durée du chantier — pas de surprises en cours de travaux.

Le budget chantier appartement est la première question que se posent les propriétaires parisiens. L'estimer sans connaître les spécificités parisiennes (ABF, copropriété, charpente haussmannienne) conduit systématiquement à des surprises budgétaires en cours de chantier. Cette page recense les coût des travaux appartement pratiqués à Paris en 2026, classés par surface, niveau de prestation et type de bien.

Le prix au m² est la mesure de référence pour comparer les devis. À Paris, la fourchette constatée s'établit entre 600 et 3 500 € selon le niveau de prestation : 600–900 €/m² pour une rénovation légère (peinture, sols, sanitaires), 900–1 800 €/m² pour une mise en conformité complète standard, et 1 800–3 500 €/m² pour une rénovation haut de gamme avec redistribution des espaces et finitions sur mesure. Le coût de rénovation au m² intègre la main-d'œuvre, les matériaux et la coordination de chantier, mais pas les honoraires d'architecte. Renover un appartement prix : comptez 10–15 % du montant HT des travaux en honoraires d'architecte DPLG pour une mission complète.

La première variable est le type de rénovation. Pour estimer travaux appartement à Paris, le prix rénovation m² à Paris dépend directement du niveau de prestation choisi. La fourchette réelle observée à Paris : 800 à 1 200 €/m² pour une rénovation légère, 1 200 à 2 000 €/m² pour une rénovation complète, 2 000 à 3 500 €/m² pour un niveau haussmannien prestige. Le prix moyen rénovation appartement paris toutes catégories confondues se situe autour de 1 400–1 600 €/m². Le budget travaux appartement paris total dépasse rarement 150 000 € pour un appartement haussmannien de 80 m² rénové intégralement — hors rachat combles et mobilier. Une rénovation légère — rafraîchissement peinture, remplacement des sols, mise à jour de la salle de bain — coûte entre 600 et 900 €/m². Une rénovation complète avec redistribution des pièces, mise aux normes électriques et plomberie, nouvelle cuisine et salle de bain : 1 200 à 1 800 €/m². Une rénovation haut de gamme avec matériaux nobles, restauration d'éléments patrimoniaux et finitions premium : 2 000 à 3 500 €/m².

Erreur 2 — Multiplier les artisans sans coordinateur. Faire gérer le chantier par les artisans eux-mêmes économise les honoraires de maîtrise d'œuvre (10–15% du budget travaux HT) mais coûte souvent bien plus en dépassements, malfaçons et délais. J'ai repris de nombreux chantiers livrés "par des artisans sans architecte" — les erreurs les plus fréquentes sont l'incompatibilité des sols et des seuils de porte, les raccords de peinture mal exécutés, les coffrets électriques mal positionnés. Ces reprises coûtent en général 20 à 40% du budget initial en corrections.

Erreur 3 — Choisir le moins-disant sans garanties. À Paris, un devis 30% moins cher que la moyenne cache presque toujours une raison : entreprise sans assurance décennale, matériaux de qualité inférieure à ceux annoncés, sous-traitance non déclarée. L'assurance décennale est obligatoire pour les travaux de gros œuvre et couvre 10 ans après réception du chantier. Une entreprise qui ne peut pas produire son attestation d'assurance décennale à jour est à écarter systématiquement.

Erreur 4 — Oublier les frais annexes. Un chantier à Paris génère des frais annexes souvent sous-estimés : bennes pour l'évacuation des gravats (800 à 2 500 € selon la surface), protection des parties communes (200 à 800 €), ascenseur réservé pour les livraisons si immeuble haussmannien (prévoir accord du syndic), installation provisoire de sanitaires si la salle de bain est inaccessible pendant le chantier. Sur un chantier de 120 000 € à Paris, ces frais représentent en général 3 000 à 6 000 € supplémentaires.

Erreur 5 — Ne pas prévoir une réserve pour imprévus. Sur tout chantier parisien, je recommande de provisionner 10 à 15% du budget travaux en réserve. Dans un appartement ancien, on découvre toujours des surprises une fois les murs ouverts : gaines électriques en mauvais état non visibles lors du diagnostic, trace d'humidité ancienne derrière un doublage, poutre de plancher à consolider. Ces découvertes ne sont pas des malfaçons — elles sont inhérentes au bâti parisien ancien. Anticiper cette réserve évite de devoir faire des choix de dernière minute sous contrainte budgétaire.

Votre budget

Estimez votre budget
avec précision.

En visioconférence (45–60 min), Teresa analyse votre bien et vos objectifs pour vous donner un budget réaliste — pas une fourchette générique.

Audit visio →

150 € · visio · 45-60 min

☏ 06 18 27 88 48

Retour sur investissement

Budget travaux et plus-value immobilière — ce que les chiffres disent

La question que me posent tous les propriétaires investisseurs : est-ce que les travaux sont rentables ? La réponse est presque toujours oui à Paris — à condition de bien cibler les postes. Voici ce que j'observe sur les projets que j'accompagne.

L'appartement non rénové vs rénové à Paris. À Paris, un appartement "à rénover" se vend en moyenne 15 à 30% moins cher qu'un bien comparable entièrement rénové. Sur un appartement de 80 m² estimé à 800 000 € en bon état, la version "à rénover" se négocie entre 560 000 et 680 000 €. Si la rénovation complète coûte 120 000 €, la plus-value nette est de 0 à 120 000 € selon le marché — sans compter la valeur d'usage pendant l'occupation. Sur les marchés premium (6e, 7e, Île Saint-Louis), la prime du bien rénové peut atteindre 35 à 50% — les acheteurs de ces secteurs paient pour ne pas avoir à gérer un chantier.

La rentabilité locative après travaux. En LMNP meublé à Paris, un appartement bien rénové génère un loyer supérieur de 25 à 45% à un bien non rénové de même surface. Sur un studio de 25 m², la différence représente 200 à 400 €/mois supplémentaires. Sur 12 mois, c'est 2 400 à 4 800 € de revenus locatifs additionnels — soit un budget travaux de 40 000 € amorti en 8 à 17 ans en différentiel de loyer seul, avant prise en compte de la valorisation du capital. Pour les projets locatifs, je recommande de concentrer le budget sur les postes qui impactent directement la perception : salle de bain, cuisine, sol — et d'utiliser des matériaux durables pour limiter les coûts de remise en état entre locataires.

Les arrondissements où la plus-value est la plus forte. Sans surprise, les arrondissements centraux et les secteurs à forte demande offrent les meilleures plus-values après travaux. Le 16e, le 6e, le 7e et le 4e (Marais) sont les secteurs où un investissement en rénovation de qualité rapporte le plus proportionnellement. Mais les arrondissements en mutation — le 10e (Canal Saint-Martin), le 11e (Bastille-Oberkampf), le 18e (Montmartre), le 19e (Buttes-Chaumont) — offrent parfois des retours supérieurs en valeur absolue, car les prix d'acquisition sont encore accessibles et la progression du marché est forte. Pour aller plus loin sur les prix par secteur : Neuilly-sur-Seine, Vincennes et Saint-Germain-en-Laye sont également des marchés porteurs en première couronne.

Un point sur les honoraires d'architecte. Les honoraires d'architecte DPLG en mission complète représentent 10–15% du montant HT des travaux. Sur un budget travaux de 120 000 € TTC, cela représente 12 000 à 18 000 €. C'est un investissement — pas un coût. Les projets avec architecte livrent en moyenne une plus-value supérieure de 15 à 25% à ceux sans architecte, selon les études de l'Observatoire de l'Immobilier Parisien. La cohérence du projet, la qualité d'exécution garantie par la responsabilité décennale, et la maîtrise du calendrier sont les trois leviers qui font la différence entre un chantier subi et un projet réussi.

Questions fréquentes

Prix rénovation appartement Paris — vos questions

Le coût de rénovation d'un appartement à Paris varie de 600 à 3 500 €/m² selon le type de rénovation et l'arrondissement. Rénovation légère (peinture, sols, salle de bain) : 600–900 €/m². Rénovation complète standard (redistribution, électricité, plomberie, cuisine, salle de bain) : 1 200–1 800 €/m². Rénovation haut de gamme avec matériaux nobles et restauration patrimoniale : 2 000–3 500 €/m². Ces prix incluent la main-d'œuvre et les matériaux mais excluent les honoraires d'architecte (10–15 % du montant HT des travaux) et l'éventuel désamiantage.

Pour un appartement de 80 m² dans un arrondissement intermédiaire de Paris (11e, 14e, 15e), le devis de rénovation complète se situe entre 72 000 et 108 000 € TTC (1 200–1 800 €/m²). Ce budget couvre l'ensemble du second œuvre : démolitions, redistribution des pièces si nécessaire, électricité aux normes NF C 15-100, plomberie, isolation phonique, cuisine ouverte, salle de bain et revêtements sols et murs. Les honoraires d'architecte (mission complète maîtrise d'œuvre) s'ajoutent à hauteur de 10 à 15 % du montant HT des travaux.

Plusieurs leviers permettent d'optimiser le budget de rénovation sans sacrifier la qualité. Premièrement, conserver les cloisons légères existantes lorsqu'elles sont dans un état correct — leur démolition et reconstruction représente 15 à 25 €/ml. Deuxièmement, préserver les parquets anciens en les ponçant plutôt qu'en les remplaçant (40–70 €/m² contre 80–200 €/m² pour du neuf). Troisièmement, travailler en phase avec les saisons creuses des artisans (mars-avril, octobre-novembre) pour négocier de meilleures conditions. Quatrièmement, regrouper les travaux en une seule opération pour réduire les frais de chantier et de déplacement.

Les honoraires d'un architecte DPLG pour une mission complète de maîtrise d'œuvre (conception, permis, consultation entreprises, suivi chantier) représentent 10 à 15 % du montant HT des travaux. Pour 80 000 € HT de travaux : 8 000 à 12 000 € d'honoraires HT. Une mission partielle (conception et plans uniquement, sans suivi chantier) est facturée 6 à 8 %. Une mission de faisabilité seule (diagnostic, contraintes, estimation) : 2 500 à 5 000 € forfaitaire selon la superficie. Chez Teresa Lombardo, le premier échange est gratuit et sans engagement.

L'écart est significatif. Dans le 16e arrondissement (Trocadéro, Passy), une rénovation complète coûte 1 600 à 2 800 €/m² en raison des contraintes ABF (Architectes des Bâtiments de France), du standing des immeubles et du coût des artisans spécialisés exigés. Dans le 19e arrondissement (Buttes-Chaumont, Villette), le même type de travaux coûte 1 100 à 1 700 €/m² — soit 30 à 50 % moins cher. Cet écart reflète à la fois le coût de la main-d'œuvre locale, les contraintes réglementaires et le niveau de finition attendu selon le marché.

Oui, généralement. Les frais fixes d'un chantier parisien — installation de chantier, protection des parties communes, bennes, coordination — sont les mêmes quelle que soit la surface. Sur 40 m², ils représentent une part importante du budget total. Sur 120 m², ils sont dilués sur une surface triple. En pratique, le coût au m² d'un studio de 22 m² est souvent 20 à 35% supérieur à celui d'un appartement de 100 m². C'est une donnée importante pour les investisseurs en petites surfaces parisienens.

Légalement, le recours à un architecte n'est obligatoire en France que pour les surfaces planchers supérieures à 150 m² ou les permis de construire déposés par des personnes morales. En dessous de 150 m², vous pouvez techniquement vous passer d'un architecte. Mais à Paris, les contraintes spécifiques (ABF, copropriété, bâti ancien, normes techniques) rendent l'intervention d'un architecte DPLG très fortement recommandée dès que le projet touche à la structure ou aux parties communes. Et l'expérience montre que les projets avec architecte livrent un résultat supérieur pour un coût global souvent inférieur, une fois comptés les erreurs évitées et les dépassements limités.

Plusieurs options coexistent. Le prêt travaux bancaire classique (durée 7 à 15 ans, taux fixe) est la solution la plus courante pour les résidences principales. L'éco-PTZ (Prêt à Taux Zéro) est disponible pour les travaux d'amélioration énergétique sous conditions de ressources et de nature des travaux. MaPrimeRénov' est cumulable avec d'autres aides pour les travaux d'isolation et de chauffage. Pour les investisseurs en LMNP, les travaux sont déductibles des revenus locatifs ou amortissables selon le régime fiscal choisi. Teresa Lombardo peut orienter ses clients vers les dispositifs adaptés à leur situation lors de la première visite.

La deuxième variable est l'arrondissement. Le coût de la main-d'œuvre, les contraintes ABF et le standing du bâti créent des écarts significatifs entre le 19e (le moins cher) et le 7e ou 8e (les plus chers). Le tableau ci-dessous synthétise les fourchettes par arrondissement pour une rénovation complète standard.

ArrondissementFourchette €/m²Contrainte ABFProfil type
Paris 6e, 7e, 8e1 800 – 3 000 €Très élevéeHaussmannien prestige, hôtels particuliers
Paris 1er, 2e, 3e, 4e1 600 – 2 500 €Élevée (PSMV)Marais, bâti ancien, PSMV
Paris 16e, 17e1 600 – 2 200 €Modérée–élevéeHaussmannien Belle Époque, Art Déco
Paris 5e, 9e, 14e, 15e1 400 – 2 000 €ModéréeHaussmannien standard, Quartier Latin
Paris 10e, 11e, 12e, 18e1 200 – 1 800 €FaibleHaussmannien tardif, ateliers reconvertis
Paris 13e, 19e, 20e1 100 – 1 700 €FaibleAnnées 60–80, haussmannien tardif
Neuilly, Saint-Germain-en-Laye1 400 – 2 200 €ModéréeRésidences standing, haussmannien banlieue
Vincennes1 300 – 2 000 €Élevée (ABF château)Belle Époque, années 30

Réalisation

Projet type — aménagement combles Vincennes

Combles bruts avant travaux — grenier charpente XIXe — Vincennes — Teresa Lombardo architecte DPLG Avant
Combles bruts — charpente XIXe avant travaux
Plan architecte aménagement combles après travaux — Vincennes — Teresa Lombardo DPLG Plan
Plan projet — redistribution combles 35 m²
Chantier aménagement combles pendant travaux — Vincennes — Teresa Lombardo architecte DPLG Chantier
Pendant travaux — isolation, Velux, cloisons
Escalier combles sur mesure métal et chêne — Vincennes — Teresa Lombardo architecte DPLG Après
Escalier sur mesure — métal noir, marches chêne
Chambre parentale sous comble après travaux — Vincennes — Teresa Lombardo architecte DPLG
Salle de bain sous comble après travaux — Vincennes — Teresa Lombardo architecte DPLG Après
Salle de bain mansardée — baignoire îlot, Velux
Localisation
Vincennes
Val-de-Marne (ABF château)
Surface créée
35 m²
Combles transformés
Budget TTC
92 000 €
Architecte HMONP inclus
Prix au m²
2 629 €/m²
Chambre, SDB, bureau, escalier, dressing

Prix rénovation appartement Paris — par surface

Le prix rénovation appartement Paris varie selon la surface, le niveau de prestation et l'arrondissement. Fourchettes 2026 pour estimer travaux appartement à Paris — de 40 m² (studio) à 150 m² (4–5 pièces). Le prix rénovation appartement 60m2 et le prix rénovation appartement 80m2 représentent 60 % des projets parisiens. Au-delà, le prix rénovation appartement 100m2, le prix rénovation appartement 120m2 et le prix rénovation appartement 150m2 bénéficient de la dégressivité détaillée ci-dessous.

Le prix de rénovation au m² est généralement moins élevé à mesure que la surface à rénover augmente — toutes choses égales par ailleurs. Ce phénomène de dégressivité s'explique par la mutualisation des coûts fixes : l'installation du chantier, les démarches administratives (permis de construire, dossier ABF), les frais de protection et d'évacuation des gravats, et les honoraires d'architecte (souvent exprimés en pourcentage dégressif du montant HT) représentent un budget incompressible qui se répartit sur un plus grand nombre de m² dans un grand appartement. Un appartement de 150 m² ne coûte pas 2,5 fois plus cher à rénover qu'un 60 m² du même standing — l'écart réel est plutôt de l'ordre de 1,8 à 2 fois. C'est pourquoi le prix moyen rénovation m2 — le prix moyen rénovation m2 parisien étant structurellement plus élevé que la moyenne nationale — décroît légèrement de 40 à 150 m².

La cuisine est le poste qui peut le plus fortement moduler le prix total d'une rénovation, à surface constante. Une cuisine IKEA avec façades sur mesure (solution intermédiaire courante à Paris) représente 8 000 à 15 000 € posée. Une cuisine semi-sur-mesure de menuisier représente 18 000 à 35 000 €. Une cuisine entièrement sur mesure avec plan de travail en marbre, électroménager haut de gamme et cave à vin intégrée peut dépasser 60 000 à 80 000 € — à elle seule, la cuisine peut ainsi représenter 30 à 50 % du budget total d'une rénovation complète sur un 60 m². À l'inverse, conserver une cuisine existante fonctionnelle et se limiter à un rafraîchissement (peinture, façades, plan de travail) réduit l'enveloppe de 10 000 à 20 000 € sur un projet standard. Teresa Lombardo accompagne ses clients dans ce choix stratégique dès la phase d'esquisse — la cuisine étant souvent le seul poste sur lequel un propriétaire peut piloter son budget total de manière significative. En savoir plus : rénovation cuisine Paris et rénovation appartement haussmannien.

L'ouverture d'un mur porteur est l'autre variable qui peut significativement faire évoluer le budget. Casser un mur porteur pour créer une cuisine ouverte ou agrandir un séjour nécessite la pose d'une poutre IPN et l'intervention d'un bureau d'études structure — une démarche que En architecture intérieure, Teresa Lombardo coordonne en tant qu'ingénieur civil. Le prix ouverture mur porteur varie de 3 000 à 15 000 € selon la largeur (de 1 m à 4 m+), le type de structure (béton, pierre, parpaing) et la complexité de reprise en sous-œuvre. Abattre un mur porteur sans architecte ni BET structure est un risque structurel majeur dans les immeubles haussmanniens parisiens, dont les planchers bois transmettent les charges différemment du béton. → Guide complet : prix ouverture mur porteur à Paris

Les revêtements de sol sont également un poste à fort impact budgétaire. La restauration parquet ancien Paris — ponçage + vitrification ou huilage d'un parquet point de Hongrie ou chêne massif — représente 25 à 55 €/m² et reste toujours moins coûteuse qu'un remplacement. Dans les appartements haussmanniens, Teresa Lombardo recommande systématiquement de conserver les parquets anciens : une rénovation parquet bien exécutée valorise bien davantage le bien qu'un sol neuf générique. Le prix remplacement parquet (dépose + fourniture + pose d'un parquet massif) atteint 80 à 180 €/m² — soit 3 à 4 fois plus cher. Remplacer carrelage par parquet est une autre demande fréquente sur les projets parisiens : comptez 60 à 120 €/m² pour la dépose du carrelage, la préparation du support et la pose d'un parquet flottant ou cloué.

Surface Rénovation légère Rénovation complète Haut de gamme Prix m² moyen
Prix rénovation appartement 40m2 24 000 – 36 000 € 40 000 – 64 000 € 64 000 – 100 000 € 600 – 2 500 €/m²
prix rénovation appartement 60m2 34 000 – 51 000 € 54 000 – 86 000 € 86 000 – 138 000 € 570 – 2 300 €/m²
prix rénovation appartement 80m2 44 000 – 66 000 € 70 000 – 112 000 € 112 000 – 172 000 € 550 – 2 150 €/m²
prix rénovation appartement 100m2 54 000 – 80 000 € 86 000 – 136 000 € 136 000 – 210 000 € 540 – 2 100 €/m²
prix rénovation appartement 120m2 62 000 – 94 000 € 100 000 – 158 000 € 158 000 – 246 000 € 520 – 2 050 €/m²
prix rénovation appartement 150m2 75 000 – 112 000 € 120 000 – 187 000 € 187 000 – 292 000 € 500 – 1 950 €/m²

Comment estimer le budget chantier appartement à Paris ?

Variable Impact sur le prix m² Détail
Niveau de prestation × 1 à × 4 Légère (sols, peinture) : 600–900 €/m² (rénovation prix au m2 : 600–900 € — le prix rénovation au m2 le plus bas constaté à Paris) — Haut de gamme : 2 000–3 500 €/m². Cout rénovation m2 médian à Paris : 1 200–1 800 €/m²
Arrondissement + 20 à + 80 % Paris 19–20e : 1 100 €/m² min — Paris 6–7–8e : 1 800–3 000 €/m²
Contraintes ABF + 10 à + 30 % Matériaux imposés (zinc, pierre), dossier architecte obligatoire
Redistribution des espaces + 15 à + 40 % Ouverture mur porteur, création salle de bain, déplacement cuisine
Honoraires architecte DPLG + 10 à + 15 % Mission complète : conception, permis, suivi chantier

Devis rénovation Paris — comment obtenir un prix fiable

Le coût réel d'une rénovation à Paris ne peut être établi précisément qu'après visite du bien. Les fourchettes données en ligne sont indicatives — le prix final dépend des contraintes spécifiques du bien : état des réseaux, configuration de la copropriété, présence d'amiante, niveau d'exigence ABF. Teresa Lombardo propose un appel découverte gratuit pour vous donner une estimation calibrée. Pour les projets d'aménagement de combles à Paris, consultez le guide dédié. Exigez toujours un prix au m² HT dans vos devis travaux appartementc'est le seul indicateur qui permette de comparer objectivement plusieurs offres. Un devis travaux appartement sans mention du prix m2 rénovation appartement paris est incomplet.

Les honoraires d'architecte sont à ajouter au budget travaux. Pour une mission complète de maîtrise d'œuvre — conception, permis de construire ou déclaration préalable, consultation des entreprises, suivi de chantier — les honoraires représentent 10 à 15 % du montant HT des travaux. Sur un projet de 100 000 € HT, cela représente 10 000 à 15 000 € d'honoraires. En contrepartie, l'architecte génère en moyenne 15 à 25 % de plus-value supplémentaire à la revente du bien rénové. Obtenir un devis gratuit →

Le désamiantage est un coût additionnel à prévoir pour tout bien construit avant le 1er juillet 1997. Un diagnostic amiante avant travaux (DAT) est obligatoire. En cas de présence d'amiante, le désamiantage coûte entre 3 000 et 20 000 € selon la surface et la localisation des matériaux concernés. Teresa Lombardo coordonne cette étape dans le cadre de sa mission de maîtrise d'œuvre.

Pour obtenir un devis précis de rénovation appartement à Paris adapté à votre bien spécifique, le premier échange avec Teresa Lombardo est entièrement gratuit et sans engagement. En 45 minutes de visite, vous disposez d'une estimation budgétaire fiable et d'un premier avis sur la faisabilité de votre projet.

Réalisation

Projet type — rénovation complète Saint-Germain-en-Laye

Avant ouverture mur porteur — appartement haussmannien Saint-Germain-en-Laye — Teresa Lombardo architecte DPLG Avant
État initial — mur porteur entre cuisine et séjour
Chantier ouverture mur porteur — IPN posé — Saint-Germain-en-Laye — Teresa Lombardo DPLG Chantier
Pendant travaux — IPN posé, étaiement en cours
Ouverture mur porteur après travaux — séjour ouvert sur cuisine — parquet point de Hongrie — Teresa Lombardo DPLG Après
Après travaux — séjour ouvert, parquet point de Hongrie
Séjour après travaux — parquet chevron chêne, boiseries, moulures — appartement 110m² Saint-Germain-en-Laye — Teresa Lombardo architecte DPLG Après
Séjour — parquet chevron chêne, boiseries sur mesure
Salle de bain après travaux — baignoire îlot, douche italienne, faïence texturée — Saint-Germain-en-Laye — Teresa Lombardo architecte DPLG Après
Salle de bain — baignoire îlot, robinetterie bronze
WC après travaux — marbre vert, vasque colonne, miroir suspendu métal noir — Saint-Germain-en-Laye — Teresa Lombardo architecte DPLG Après
WC — marbre vert, vasque colonne, miroir suspendu
Localisation
Saint-Germain-en-Laye
Appartement haussmannien
Surface rénovée
110 m²
Rénovation complète
Prix au m²
1 700 €/m²
Architecte HMONP inclus
Mission
Complète
Maîtrise d'œuvre, mobilier sur mesure, aménagement intérieur

Facteurs déterminants

Ce qui fait vraiment varier le coût — les 6 facteurs clés à Paris

Dans vingt ans de pratique parisienne, j'ai appris que le prix au m² est une donnée de départ, jamais une vérité absolue. Deux appartements de 80 m² dans le même arrondissement peuvent avoir des budgets travaux qui varient du simple au double. Voici pourquoi.

1 — L'époque de construction. C'est le facteur le plus déterminant, et le moins connu des propriétaires. Un appartement haussmannien de 1870 et un appartement des années 1960 de même surface ont des coûts de travaux radicalement différents. L'haussmannien demande des artisans spécialisés — parqueteurs capables de restaurer un point de Hongrie d'époque, staffeurs pour les moulures, plâtriers à la chaux. Ces compétences ont un coût. À l'inverse, un appartement des années 1960 en béton armé offre plus de liberté structurelle et des matériaux plus homogènes — mais son isolation thermique et phonique est souvent à refaire entièrement, ce qui représente un poste conséquent. Pour les biens antérieurs à 1950, comptez un surcoût de 15 à 25% par rapport à une construction plus récente.

2 — La localisation dans Paris. Les contraintes ABF (Architecte des Bâtiments de France) varient considérablement selon l'arrondissement. Dans le Marais (3e, 4e), le 6e ou le 7e, tout travaux extérieur visible est soumis à l'avis de l'ABF — avec des exigences de matériaux (pierre de taille, zinc, menuiseries bois à profil historique) qui renchérissent les travaux de 10 à 30%. Sur l'Île Saint-Louis, c'est la Commission Nationale des Monuments Historiques qui intervient — les délais s'allongent et les entreprises qualifiées "restauration du patrimoine" sont plus chères. À l'inverse, dans le 15e, le 19e ou le 20e, les contraintes sont faibles et les budgets plus maîtrisables.

3 — L'état initial du bien. Un appartement "vendu à rénover" qui n'a pas été touché depuis 1975 peut sembler une bonne affaire. Il l'est souvent — mais son budget travaux est systématiquement sous-estimé par les acquéreurs. Raisons : l'installation électrique est à refaire entièrement aux normes NF C 15-100, la plomberie en plomb est à remplacer, l'isolation thermique est nulle, le DPE est souvent F ou G. Ces postes représentent à eux seuls 400 à 600 €/m² de travaux obligatoires, avant même de penser aux finitions. Je recommande toujours un audit technique complet avant acquisition pour identifier ces "surprises".

4 — La surface et la configuration. Le coût au m² décroît avec la surface — les frais fixes (installation de chantier, protection des parties communes, coordination des artisans) sont les mêmes pour 40 m² et pour 120 m². Un studio de 22 m² coûte proportionnellement bien plus cher à rénover qu'un 4-pièces de 100 m². Pour une rénovation studio Paris, le budget au m² est souvent 20 à 35% supérieur à celui d'un grand appartement.

5 — Le niveau de prestation souhaité. C'est le facteur sur lequel les propriétaires ont le plus de prise. Entre un sol en parquet stratifié et un parquet massif en chêne ciré à la cire d'abeille, la différence de coût est de 80 à 150 €/m². Entre une douche en carrelage céramique standard et une douche en marbre travertin, c'est 200 à 400 €/m² d'écart. Ces choix sont esthétiques mais aussi financiers — et mon rôle d'architecte est de vous aider à arbitrer entre ce qui a un impact réel sur la valeur du bien et ce qui relève du confort personnel.

6 — Les travaux structurels éventuels. Une ouverture de mur porteur représente 8 000 à 25 000 € supplémentaires selon la taille de l'ouverture et la nature de la structure. Un aménagement de combles ajoute 1 800 à 3 200 €/m² créé. Ces travaux sont souvent les plus rentables à la revente — ils transforment fondamentalement le plan et la perception du bien — mais ils impactent significativement le budget global.

Par type de bien

Budgets par type de bien parisien — les fourchettes 2026

Ces fourchettes sont issues des projets conduits par Teresa Lombardo entre 2022 et 2026. Elles s'entendent travaux TTC, hors honoraires architecte (10–15% du montant HT des travaux).

Appartement haussmannien (1850–1914). C'est le type de bien le plus représentatif du marché parisien — près de 60% du parc résidentiel de la capitale. Le budget varie selon le niveau de prestation et les travaux structurels.

Niveau Ce que ça comprend Prix/m² TTC Sur 80 m²
RafraîchissementPeinture, sols, sdb légère600–900 €/m²48 000–72 000 €
Rénovation partielleCuisine + sdb + électricité + finitions900–1 400 €/m²72 000–112 000 €
Rénovation complèteTous corps d'état, matériaux soignés1 400–2 000 €/m²112 000–160 000 €
PrestigeMarbre, sur mesure, restauration patrimoniale2 000–3 500+ €/m²160 000–280 000+ €

Appartement des années 1960–1980. Ces biens bénéficient d'une structure béton armé plus simple à modifier, mais leur rénovation inclut presque toujours une mise aux normes thermique et phonique lourde.

Niveau Ce que ça comprend Prix/m² TTC
Rénovation standardTous corps d'état, isolation correcte800–1 300 €/m²
Rénovation + amélioration DPE+ isolation ITI, VMC double flux1 300–1 800 €/m²
Transformation loft/plateauRedistribution complète des volumes1 500–2 500 €/m²

Maison individuelle en Île-de-France. Les maisons de banlieue — meulière, pavillon des années 1930, maison de lotissement — ont des budgets comparables à l'appartement parisien mais avec des postes différents : toiture, façade, jardin, isolation des combles. Pour une rénovation de maison meulière dans les Yvelines, comptez 1 400 à 2 500 €/m² selon l'ampleur des travaux de façade et de charpente.

Poste par poste

Détail des postes de travaux — où va l'argent concrètement

Beaucoup de propriétaires me demandent "comment le budget est-il réparti ?". Voici les fourchettes réelles pour un appartement parisien, sur la base de projets livrés entre 2023 et 2026.

Poste Fourchette basse Fourchette haute Part du budget
Électricité mise aux normes80 €/m²150 €/m²8–12%
Plomberie + sanitaires60 €/m²120 €/m²6–10%
Salle de bain complète8 000 €30 000 €10–18%
Cuisine complète8 000 €60 000 €10–25%
Revêtements de sol40 €/m²200 €/m²8–15%
Peintures et enduits25 €/m²60 €/m²5–8%
Menuiseries intérieures3 000 €15 000 €4–8%
Isolation phonique/thermique30 €/m²120 €/m²4–10%
Mobilier sur mesure10 000 €80 000 €10–30%

Source : projets livrés par Teresa Lombardo, Paris et Île-de-France, 2023–2026. Les fourchettes s'entendent TTC pour un appartement de 60 à 100 m².

Les postes qui valorisent le plus à la revente. Toutes les dépenses ne se valent pas en termes de retour sur investissement. Les trois postes qui génèrent la meilleure plus-value sont, dans l'ordre : (1) la salle de bain rénovée avec des matériaux nobles — marbre, travertin, robinetterie laiton — qui est le premier élément qu'un acquéreur remarque en visite ; (2) la cuisine ouverte sur mesure, qui transforme la distribution du bien ; (3) les revêtements de sol — un parquet massif en chêne restauré ou neuf valorise systématiquement un bien haussmannien. À l'inverse, les dépenses en systèmes domotiques ou en électroménager haut de gamme sont les moins bien valorisées à la revente.

Erreurs fréquentes

Les 5 erreurs de budget les plus fréquentes — ce que j'observe en première visite

Erreur 1 — Sous-estimer les travaux obligatoires. Mise aux normes électrique, mise aux normes plomberie, désamiantage si le bien date d'avant 1997, traitement du plomb si avant 1949 — ces postes ne sont pas négociables. Je les appelle les "travaux de fond" : ils n'améliorent pas l'esthétique mais ils sont la condition d'un logement sûr et légal. Beaucoup de propriétaires les oublient dans leur budget initial et se retrouvent à court à mi-chantier.

À Paris, une rénovation complète avec architecte se situe entre 1 200 et 1 800 €/m² en moyenne — avec un écart de 20 à 30 % à la hausse dans les arrondissements ABF (6e, 7e, 8e, 16e). Ces fourchettes ne remplacent pas un devis : chaque bien a ses contraintes propres. Le moyen le plus rapide d'obtenir une estimation fiable est d'en parler directement avec Teresa.

Teresa Lombardo intervient comme architecte DPLG et maître d'œuvre sur l'ensemble des projets parisiens, en assurant la coordination des corps de métier, le respect du planning et la conformité aux règles de copropriété. Sa connaissance du tissu artisanal parisien permet de sélectionner les entreprises les mieux adaptées à chaque type de bien — haussmannien, Belle Époque, années 30 ou construction contemporaine. Chaque devis est établi poste par poste après visite diagnostique, sans engagement de votre part.

Un projet similaire

Appartement haussmannien 80m² — Paris

Budget et délais réels sur une rénovation haussmannienne complète.

Voir le projet →
→ Appartement 70m² · Saint-Mandé
→ Belle Époque 90m² · Vincennes
Vous envisagez l’achat d’un appartement haussmannien ? Lisez d’abord les 10 pièges à éviter avant de faire une offre.

Estimation de votre projet

Devis gratuit — répondons à votre projet

Appel découverte gratuit avec Teresa Lombardo — diagnostic de faisabilité, contraintes locales, estimation budgétaire sans engagement.

Permis de construire & déclarations Maîtrise d'œuvre & suivi chantier Honoraires architecte transparents
Demander un devis gratuit →

contact@teresalombardo-architecte.com  ·  06 18 27 88 48

← Voir tous les guides rénovation

Voir aussi : Maison contemporaine 160m² Aveyron — rénovation en milieu rural