← Guide rénovation appartement Paris

Optimisation petite surface

Rénovation studio Paris — chaque m² optimisé

Rénovation et optimisation de studios parisiens par Teresa Lombardo, architecte DPLG HMONP. Mobilier sur mesure, lit escamotable, plan optimisé. Devis gratuit.

Mobilier sur mesurePlan optimisé 3DDevis gratuit

Réalisation

Projet type — rénovation studio Paris

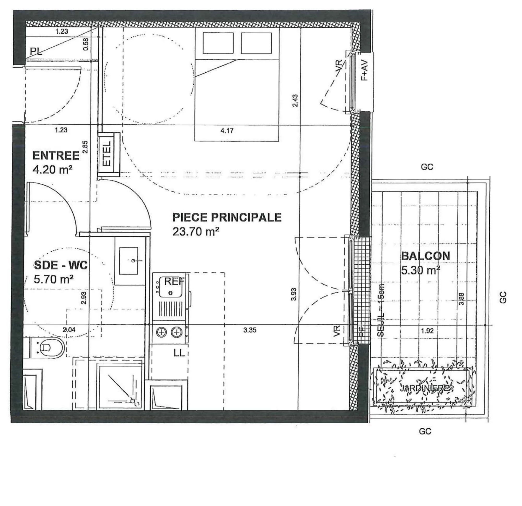
Plan architecte studio avant travaux — pièce principale 23m², balcon 5m² — Teresa Lombardo architecte DPLG Plan avant
Plan existant — studio 23,70 m², balcon 5,30 m²
Plan architecte studio après travaux — réorganisation cuisine et espace nuit — Teresa Lombardo architecte DPLG Plan projet
Plan projet — réorganisation cuisine, espace nuit séparé
Studio après travaux — placard sur mesure autour du lit, rangements intégrés, parquet — Teresa Lombardo architecte DPLG Après
Après — placard sur mesure autour du lit, bureau intégré
Localisation
Paris
Studio avec balcon
Surface
30 m²
+ balcon 5,30 m²
Prix au m²
900 €/m²
Architecte HMONP inclus
Mission
Complète
Création d'une chambre, mobilier sur mesure, aménagement intérieur

Rénovation studio

Rénover un studio à Paris — optimiser chaque m²

La rénovation studio à Paris est l'un des projets qui demande le plus de créativité architecturale : créer des espaces de vie complets (dormir, travailler, recevoir, cuisiner) dans un volume contraint de 15 à 35 m². Teresa Lombardo, architecte DPLG HMONP appartenant à la classe de l'ingénieur civil, conçoit des studios parisiens optimisés qui combinent intelligence des plans, mobilier sur mesure et finitions de qualité.

La rénovation d'un studio nécessite une réflexion architecturale globale dès la conception. Dans une rénovation studio 20m², chaque centimètre compte. La mission d'architecture intérieure d'un architecte DPLG HMONP — appartenant à la classe de l'ingénieur civil — apporte des solutions inaccessibles sans expertise : mezzanine structurelle, lit escamotable intégré dans une bibliothèque sur mesure, niche dans un mur pour créer un espace de couchage sans sacrifier de surface au sol, verrière intérieure pour faire circuler la lumière naturelle.

Le budget chantier studio à Paris varie de 12 000 à 55 000 € TTC selon la surface et le niveau de prestation. Refaire un studio à neuf prix : comptez 1 500 à 2 200 €/m² en mise en conformité complète standard, 2 000 à 3 000 €/m² haut de gamme avec mobilier sur mesure. Le budget travaux studio dépend fortement de la cuisine (8 000 à 20 000 €) et de la salle de bain (4 000 à 15 000 €). Les honoraires d'architecte (10–15 % du montant HT des travaux) sont rapidement rentabilisés par la plus-value générée. Le coût des travaux cuisine studio représente à lui seul 30 à 40 % du budget total — c'est le premier poste sur lequel agir pour maîtriser le cout rénovation studio.

Pour les studios en location, Teresa Lombardo optimise le projet selon le rendement locatif : matériaux durables, configuration maximisant la surface perçue, finitions photographiables pour les annonces. Un studio renover à Paris se loue 15 à 25 % plus cher qu'un bien non rénové. La rénovation studio avant après — les photos rénovation studio avant après — est le meilleur argument commercial — Teresa documente systématiquement chaque projet.

Les erreurs les plus fréquentes en rénovation de studio. En quinze ans, j'ai vu les mêmes erreurs se répéter. La première : vouloir économiser sur la phase de conception pour dépenser plus sur les matériaux. C'est une fausse économie — un plan mal conçu ne sera jamais rattrapé par de beaux carreaux. La deuxième : installer une cuisine en L dans un studio orienté rue, qui coupe la lumière venant de la fenêtre principale. La troisième : choisir des meubles standard trop profonds (60 cm) qui réduisent la circulation à 60 cm au lieu des 90 cm minimum nécessaires pour se sentir à l'aise. La quatrième : négliger l'acoustique — un studio à parquet sans traitement phonique est invivable dans un immeuble haussmannien où on entend les voisins du dessus à chaque pas. La cinquième, peut-être la plus commune : ne pas penser à la ventilation. Un studio sans VMC correctement dimensionnée accumule l'humidité, développe des moisissures dans la salle de bain, et vieillit mal. Ces cinq erreurs sont systématiquement évitées dans une mission d'architecte correctement menée.

Les tendances actuelles dans la rénovation de studio parisien. En 2025-2026, j'observe trois tendances fortes dans les demandes de mes clients. Premièrement, le bureau intégré : depuis le télétravail, la présence d'un espace de travail dédié est devenue une exigence même dans les plus petits studios. Je le crée souvent dans un renfoncement ou sous la mezzanine, avec prise électrique, éclairage directionnel et — idéalement — une cloison légère ou un rideau acoustique pour séparer mentalement le travail du reste du studio. Deuxièmement, la réversibilité : des clients souhaitent une rénovation qui puisse évoluer avec leurs usages (studio étudiant aujourd'hui, location meublée dans cinq ans, résidence principale plus tard). Je conçois des solutions adaptables — des cloisons facilement déplaçables, des prises de courant sur trois murs, des systèmes d'éclairage reprogrammables. Troisièmement, la durabilité des matériaux : béton, acier, chêne massif plutôt que composite — des matériaux qui vieillissent bien et n'ont pas besoin d'être remplacés tous les dix ans.

Budget rénovation studio 25 m²
15 000 – 44 000 €
Rafraîchissement à mise en conformité complète avec mobilier sur mesure.
Durée chantier
6 – 10 semaines
Pour une rénovation complète d'un studio de 20 à 35 m².
Plus-value locative
+15 à +25 %
Loyer supérieur constaté pour un studio rénové vs non rénové équivalent.
Honoraires architecte
10 – 15 %
Du montant HT des travaux. Mission complète conception + suivi chantier.

Prix rénovation studio Paris — tableau par surface

Surface Rafraîchissement Rénovation complète Haut de gamme
Rénovation studio 15m2 10 000 – 15 000 €
700 – 1 000 €/m²
20 000 – 30 000 €
1 300 – 2 000 €/m²
30 000 – 42 000 €
2 000 – 2 800 €/m²
rénovation studio 20m2 13 000 – 19 000 €
650 – 950 €/m²
25 000 – 37 000 €
1 250 – 1 850 €/m²
38 000 – 54 000 €
1 900 – 2 700 €/m²
Rénovation studio 25m2 15 000 – 23 000 €
600 – 900 €/m²
30 000 – 44 000 €
1 200 – 1 750 €/m²
45 000 – 65 000 €
1 800 – 2 600 €/m²
Rénovation studio 30m2 17 000 – 26 000 €
550 – 850 €/m²
35 000 – 50 000 €
1 150 – 1 650 €/m²
51 000 – 75 000 €
1 700 – 2 500 €/m²

Le prix varie du simple au triple selon le niveau de prestation. La principale variable est la cuisine : une rénovation cuisine complète avec façades sur mesure représente 8 000 à 20 000 €, soit 30 à 40 % du budget total. Pour renover un studio de 20m2 avec architecte DPLG, ces arbitrages sont posés dès la phase esquisse. Les fourchettes ci-dessus s'entendent travaux TTC hors honoraires d'architecte.

Les 6 leviers d'optimisation — studio parisien

01
Studio en 2 pièces
Le premier levier est souvent le plus impactant : transformer un studio en 2 pièces grâce à une cloison légère ou une verrière. Dès 27–30 m², c'est réalisable et valorise le bien de 15 à 25 %.
02
Hauteur utilisée
Mezzanine structurelle, lits superposés ou lit escamotable en hauteur : exploiter les 2,50 m sous plafond libère la surface au sol.
03
Lumière naturelle
Cloisonnement transparent (verrière intérieure), miroirs stratégiques, teintes claires : la perception de l'espace est multipliée.
04
Dressing sur mesure
Un dressing ou placard sur mesure autour du lit — en tête de lit, dans les niches, sous les combles de toit — optimise chaque centimètre et supprime la sensation de désordre.
05
Cuisine ouverte
Supprimer la séparation cuisine-séjour agrandit visuellement l'espace de 30 à 40 %. Possible même en copropriété si le mur n'est pas porteur.
06
Matériaux durables
Pour un studio en location : carrelage grand format, parquet flottant qualité, robinetterie de marque. Durabilité = moins d'interventions = meilleur rendement.

Studio refait à neuf — double avantage locatif

Un studio renover à Paris bien conçu ne se contente pas de se louer plus cher : il attire des locataires plus stables. Le gain de loyer est réel (15 à 25 % de plus qu'un bien non rénové équivalent dans le même arrondissement), mais c'est le taux de vacance quasi nul et le turn-over réduit qui font la vraie différence sur le rendement à long terme. Un locataire qui apprécie son espace de vie — cuisine fonctionnelle, rangements suffisants, lumière naturelle — ne part pas. À Paris, le coût d'une relocation (honoraires agence, période vide, remise en état) représente 1 à 2 mois de loyer. Éviter deux renouvellements de locataire sur 10 ans amortit à lui seul le surcoût d'une rénovation architecturée.

La transformation studio en 2 pièces — lorsque la surface le permet (27 m² minimum) — est le levier de valorisation le plus puissant. Une cloison légère avec porte coulissante ou une verrière intérieure crée une vraie chambre séparée sans travaux lourds. Le loyer d'un 2 pièces dépasse systématiquement celui d'un studio de surface équivalente de 10 à 20 %. Un dressing sur mesure autour du lit — tête de lit encadrée de rangements, penderie encastrée, niches habillées — supprime le principal reproche des locataires sur les petites surfaces : le manque de rangement.

Architecture des petites surfaces

Le studio parisien — contraintes spécifiques et leviers architecturaux

Après vingt ans à concevoir des espaces à Paris, je peux affirmer que la rénovation d'un studio est l'exercice le plus exigeant de notre métier — bien plus qu'un grand appartement. Un 200 m² offre des marges d'erreur. Un 22 m² n'en offre aucune. Chaque décision de plan se répercute sur toutes les autres : l'emplacement de la cuisine conditionne la lumière, qui conditionne la hauteur des rangements, qui conditionne la sensation de volume. C'est un travail d'horloger où la beauté finale naît de la précision initiale.

Le parc de studios parisiens est particulièrement hétérogène. On y trouve des biens des années 1920–1930 dans les immeubles haussmanniens tardifs — avec des hauteurs sous plafond de 2,80 à 3,20 m qui sont un trésor à exploiter — et des studios des années 1970–1990, souvent sombres, aux configurations moins généreuses. Les contraintes ne sont pas les mêmes, et les solutions non plus. Voici ce que j'ai appris à distinguer en quinze ans de pratique intensive.

La hauteur sous plafond : le premier diagnostic. C'est la donnée la plus précieuse d'un studio. En dessous de 2,50 m, la mezzanine est exclue sauf exception. De 2,50 m à 2,80 m, une mezzanine courte sur un tiers de la surface est envisageable si le propriétaire accepte une hauteur assise de 1,10 m. Au-delà de 2,80 m, le potentiel est immense : lit en mezzanine structurelle à 1,60 m de hauteur libre en dessous, espace de couchage totalement séparé visuellement du séjour, double hauteur exploitée pour des rangements du sol au plafond. Dans un studio haussmannien de 25 m² avec 3,10 m sous plafond, j'obtiens l'équivalent fonctionnel d'un 40 m² standard.

L'orientation et la lumière naturelle. Un studio orienté nord avec une seule fenêtre est un défi autrement plus complexe qu'un studio traversant ou orienté sud-ouest. La lumière naturelle n'est pas un luxe dans un petit espace — c'est un matériau architectural à part entière. Elle détermine les couleurs (les tons chauds dans les espaces sombres, les teintes fraîches dans les espaces baignés de soleil), la position de la cuisine (ne jamais masquer la source principale de lumière avec des meubles hauts), et l'usage des miroirs ou des surfaces réfléchissantes comme amplificateurs optiques. Dans un studio de 20 m² orienté nord, une verrière intérieure entre la pièce principale et la salle de bain peut multiplier par deux la sensation de luminosité perçue.

Les contraintes structurelles du bâti parisien. La majorité des studios parisiens anciens ont des murs en pierre de taille ou en moellons — épais, lourds, excellents thermiquement et acoustiquement, mais peu propices aux saignées pour passages de réseaux. Faire passer une gaine électrique ou une canalisation dans un mur porteur en pierre demande une étude préalable et une technique d'exécution soignée pour ne pas fragiliser la structure. Dans les immeubles des années 1960–1980, les cloisons sont souvent en briques plâtrières ou en carreaux de plâtre — plus faciles à modifier, mais avec une isolation phonique souvent médiocre qu'une rénovation doit corriger. L'analyse structurelle fait partie intégrante de ma première visite : je ne conçois pas un plan sans avoir identifié la nature de chaque paroi.

Les 6 leviers d'optimisation

Studio Paris — 6 leviers d'optimisation architecturale

Ces six leviers sont le résultat de ce que j'ai retenu de plus de cinquante projets de petites surfaces à Paris. Ils s'appliquent à presque tous les studios, quelle que soit la configuration de départ.

Levier 1 — La mezzanine structurelle : gagner un niveau dans 2,80 m. C'est le levier le plus puissant dans les studios à haute sous-plafond. Une mezzanine correctement conçue — c'est-à-dire calculée par un ingénieur structure, fixée dans les murs porteurs ou sur des poteaux acier, avec un escalier-rangement intégré — libère 100% de la surface au sol pour les espaces de vie. Le lit disparaît du séjour. En dessous de la mezzanine : bureau, dressing, ou coin canapé. L'escalier, toujours conçu sur mesure en menuiserie bois ou acier-bois, intègre des rangements dans chaque contremarche. C'est l'investissement qui rapporte le plus en qualité de vie perçue. Budget mezzanine complète : 8 000 à 18 000 € selon les matériaux et la complexité structurelle.

Levier 2 — La cuisine ouverte intégrée dans un meuble linéaire. Dans un studio, la cuisine ouverte sur le séjour est quasi-systématiquement préférable à une cuisine fermée. Mais elle doit être pensée comme un meuble, pas comme une pièce. Je la conçois toujours en linéaire contre un mur, avec des façades qui s'harmonisent au mobilier du séjour — mêmes teintes, mêmes matières — pour que l'ensemble forme un bloc cohérent fermé quand les portes sont en position haute. Un bon volet roulant ou des portes coulissantes camouflent totalement la cuisine quand elle n'est pas utilisée. La hotte intégrée dans le placard supprime le principal signal visuel de "cuisine". Résultat : le studio vit comme un appartement en journée, et révèle sa fonction le soir.

Levier 3 — Le lit escamotable intégré dans une bibliothèque. Dans les studios sans hauteur suffisante pour une mezzanine, le lit escamotable (ou "lit Murphy") est la solution la plus efficace. La génération actuelle de mécanismes (Resource Furniture, Clei, Expand) est silencieuse, fiable, et peut supporter un vrai matelas de qualité — finis les matelas mousse de 8 cm. Je l'intègre systématiquement dans un meuble bibliothèque sur mesure qui, une fois le lit relevé, ressemble à une bibliothèque ou à un panneau de rangements. La surface au sol récupérée est considérable : un lit 140 cm × 200 cm couché occupe 2,80 m² ; relevé, il libère pratiquement tout cet espace. Budget lit escamotable + meuble sur mesure : 6 000 à 12 000 € selon les dimensions et les finitions.

Levier 4 — La salle de bain compacte à l'italienne. Dans un studio, la salle de bain occupe en général 3 à 5 m². Chaque centimètre compte. La douche à l'italienne sans receveur ni paroi de baignoire est quasi-systématique — elle libère 30 à 40 cm par rapport à une cabine de douche standard, et crée visuellement une surface continue qui agrandit l'espace. La vasque à poser sur un plan suspendu (sans pied au sol) facilite le nettoyage et allonge optiquement la salle de bain. Le carrelage grand format (60×60 ou 80×80) posé jusqu'au plafond donne de la hauteur. Un miroir pleine largeur doublé d'un éclairage led linéaire en haut complète l'effet. Pour les studios très contraints, j'explore parfois la salle de bain "wet room" — où la douche, le lavabo et éventuellement les WC cohabitent dans un même espace entièrement carrelé, sans séparation physique. Gain de place : jusqu'à 1 m².

Levier 5 — Les rangements du sol au plafond sur un pan de mur entier. Dans un studio de 20 m², un mur entier de rangements du sol au plafond (2,80 à 3 m de hauteur, 3 à 4 m de largeur) offre 8 à 12 m² de surface de stockage sur un seul plan vertical. C'est l'équivalent d'une pièce de rangement entière. La condition : que ce mur soit conçu avec précision, sans débord excessif en profondeur (30 à 40 cm suffisent pour vêtements pliés et livres), et que les portes soient sans poignée apparente pour ne pas alourdir visuellement l'espace. Les portes coulissantes sont à éviter si l'espace latéral est contraint — elles bloquent l'accès à la moitié du meuble en permanence. Je leur préfère des portes battantes à fermeture magnétique, ou un système de pivot si les dimensions le permettent.

Levier 6 — La verrière intérieure pour faire circuler la lumière. C'est l'intervention architecturale la plus esthétique et souvent la plus transformatrice. Remplacer une cloison pleine entre le séjour et la salle de bain (ou entre l'entrée et le séjour) par une verrière acier-verre permet à la lumière de traverser toute la profondeur du studio. Dans un studio de 22 m² orienté nord que j'ai rénové rue du Temple à Paris, cette seule intervention a transformé un espace sombre et étouffant en studio lumineux et aérien. La verrière crée également une profondeur visuelle qui agrandit perceptuellement l'espace. Budget verrière intérieure : 3 500 à 7 000 € selon les dimensions et la complexité de la pose.

Votre studio

Chaque m² compte —
faisons-les compter.

Visite sur place — Teresa identifie le potentiel de votre studio, propose les leviers d'optimisation et vous remet une estimation budgétaire.

Visite conseil →

450 € · sur place · 1h

☏ 06 18 27 88 48

Matériaux & finitions

Choisir les bons matériaux — amplifier l'espace par les finitions

La palette matériaux d'un studio doit obéir à une logique différente de celle d'un grand appartement. Dans un grand espace, on peut se permettre des contrastes forts, des changements de matières d'une pièce à l'autre. Dans un studio, la continuité des matériaux et des teintes est la règle absolue — c'est elle qui crée l'impression de grandeur et de cohérence.

Le sol : continuité absolue. Je proscris les changements de revêtement de sol dans un studio — pas de parquet dans le séjour et de carrelage dans la cuisine. Un seul matériau, du sol au sol, sans rupture, fait paraître l'espace plus grand. Mon matériau de prédilection pour les studios parisiens est le béton ciré ou le micro-béton — continu, sans joints visibles, gris doux ou sable, qui s'harmonise avec tout type de mobilier et reflète légèrement la lumière. Alternativement, un parquet contrecollé grand format (lames de 20 cm de large minimum) en chêne naturel, posé en long dans l'axe principal du studio, étire visuellement l'espace. Je déconseille fortement les carreaux standard en 30×30 ou en 60×60 dans les séjours de studios — leurs joints visibles fragmentent l'espace.

Les murs : blanc chaud ou teinte unique. La tentation du blanc pur (RAL 9010 ou équivalent) est grande dans les petits espaces. C'est une erreur dans les studios sombres — le blanc pur tire vers le gris par manque de lumière et paraît sale. Je lui préfère un blanc chaud légèrement crème (Farrow & Ball "Strong White" ou "All White", Little Greene "Slaked Lime") qui réchauffe sans assombrir. Dans les studios bien exposés, une teinte unique sur tous les murs — un gris clair, un vert de gris, un taupe très doux — crée une enveloppe cohérente qui efface visuellement les limites de l'espace. Le principe : plus les murs disparaissent, plus la pièce s'agrandit.

Les menuiseries et le mobilier sur mesure. Dans un studio, le mobilier sur mesure n'est pas un luxe — c'est une nécessité fonctionnelle. Les meubles standards sont conçus pour des espaces standards. Dans un studio parisien, les murs ne sont jamais d'équerre, les angles ne sont jamais à 90°, les niches et les renfoncements ont des dimensions non standard. Un meuble sur mesure s'adapte millimètre par millimètre — il récupère les 8 cm perdus derrière le pilier, il intègre le tuyau de descente d'eau dans sa structure sans créer de bosse visible. Ce sont ces 8 cm récupérés sur dix endroits différents qui font la différence entre un studio étouffant et un studio vivable. Le mobilier sur mesure représente généralement 25 à 35% du budget travaux dans un studio bien conçu.

L'éclairage : la quatrième dimension. Dans un studio, l'éclairage est une composante architecturale à part entière, pas un ajout en fin de chantier. Je le conçois en trois couches : l'éclairage général (spots encastrés dans le faux-plafond si hauteur disponible, ou plafonnier centré sinon), l'éclairage d'ambiance (guirlandes lumineuses, liseuses intégrées dans la tête de lit, ruban LED sous les meubles suspendus), et l'éclairage fonctionnel (spot de plan de travail cuisine, lampe de bureau orientable). La gestion par variateur — sur une ou deux zones distinctes — est indispensable pour créer des atmosphères différentes dans le même espace : éclairage fort en journée travail, éclairage tamisé le soir. Budget éclairage complet studio : 1 500 à 3 500 € selon la complexité.

Configurations fréquentes

Studio 15 à 35 m² — stratégies par surface et configuration

Chaque surface de studio appelle une stratégie spécifique. Voici les approches que j'applique selon les configurations les plus fréquentes à Paris.

Le studio de 15 à 20 m² — le cas extrême. C'est le studio étudiant ou investissement locatif. La contrainte est maximale. Ma stratégie : tout sur mesure, tout multifonction. Lit escamotable obligatoire si la hauteur le permet (sinon canapé-lit de qualité, jamais en premier choix). Cuisine en U sur 1,80 m linéaire maximum, avec plaques à induction intégrées dans le plan de travail et micro-ondes encastré à hauteur d'yeux. Salle de bain en 2,20 m² avec WC suspendu, douche à l'italienne 80×80, vasque 40 cm. Pas de cloisons superflues — l'entrée est une transition, pas une pièce. Rangements en hauteur sur tous les murs libres. Résultat visé : un espace propre, lisible, et agréable à vivre, même dans 18 m².

Le studio de 20 à 28 m² — la surface optimale. C'est le studio parisien "idéal" pour un propriétaire occupant. Ici, les solutions deviennent vraiment intéressantes. Une hauteur de 2,80 m ou plus permet une mezzanine partielle sur un tiers de la surface — en dessous : bureau ou coin canapé. La cuisine peut être semi-ouverte avec un bar-comptoir qui sert de séparation visuelle et de surface de travail complémentaire. La salle de bain atteint 3,5 à 4 m² — on peut y intégrer un lave-linge dans un meuble colonne. L'entrée, même minuscule, peut accueillir un placard à manteaux intégré. Et il reste de la place pour penser au plan de cuisine en L avec îlot, si les dimensions le permettent. C'est dans ce format que les projets sont les plus gratifiants — le potentiel de transformation est énorme.

Le studio de 28 à 35 m² — le studio-T1 de facto. À partir de 28 m², on peut envisager une vraie séparation de l'espace nuit, même sans fermeture totale. Une verrière intérieure, une bibliothèque basse (1,20 m de hauteur) faisant office de claustra, ou une cloison partielle à 2,20 m de hauteur créent une zone nuit distincte sans couper la lumière. La cuisine peut être entièrement ouverte sur le séjour avec un IPN si un mur porteur sépare les deux. À ce niveau de surface, la question d'un couloir se pose — souvent je le supprime pour récupérer la surface, en intégrant les rangements dans la profondeur des cloisons. Un studio de 32 m² bien conçu vit comme un T2 de 45 m² mal pensé.

Tableau comparatif — investissements et retour par surface.

Surface Budget rénov. complète TTC Leviers prioritaires Valorisation estimée
15–20 m²18 000 – 30 000 €Lit escamotable, cuisine intégrée, salle de bain compacte+15 à 25% sur valeur locative
20–28 m²28 000 – 50 000 €Mezzanine, verrière, rangements sol-plafond+20 à 35% sur valeur vénale
28–35 m²40 000 – 65 000 €Séparation espace nuit, ouverture cuisine, mobilier sur mesure+25 à 40% sur valeur vénale

* Hors honoraires architecte (10–15 % du montant HT des travaux). Source : projets Teresa Lombardo, 2022–2026.

Réglementation & copropriété

Rénovation studio Paris — ce que vous devez savoir avant de commencer

La rénovation d'un studio à Paris, même petite surface, implique plusieurs aspects réglementaires qu'un architecte DPLG connaît par cœur et que les propriétaires découvrent souvent trop tard.

La copropriété et les travaux impactant les parties communes. Dans un studio, les travaux les plus courants — remplacement des fenêtres, modification d'une cloison, réfection de la salle de bain — n'impactent en général pas les parties communes et ne nécessitent donc pas d'autorisation de copropriété. En revanche, dès qu'un travail touche à la structure de l'immeuble (percement d'un mur porteur, même pour un simple passage de gaine), à la façade (remplacement de fenêtres dans un immeuble avec règlement de copropriété strict), ou aux colonnes montantes de plomberie (déplacement d'une salle de bain impactant les descentes d'eau), une autorisation préalable en assemblée générale peut être requise. Je vérifie systématiquement le règlement de copropriété avant tout projet — c'est une condition indispensable pour un planning de travaux fiable.

La déclaration préalable de travaux. Dans Paris intramuros, et particulièrement dans les secteurs protégés (périmètre des Monuments Historiques, secteurs sauvegardés du Marais ou de l'Île Saint-Louis), tout changement d'aspect extérieur peut nécessiter une déclaration préalable. Si le studio est en rez-de-chaussée avec une vitrine ou une porte sur rue, ou si les fenêtres sont remplacées par des modèles différents du reste de l'immeuble, une déclaration préalable est souvent exigée. En secteur ABF, l'avis de l'Architecte des Bâtiments de France est obligatoire pour tout ce qui touche à l'extérieur — et le délai peut atteindre 2 mois d'instruction. Je prévois toujours ce délai dans le rétro-planning.

La mise aux normes électrique. La majorité des studios parisiens construits avant 1975 ont une installation électrique qui ne respecte pas la norme NF C 15-100 en vigueur. Une rénovation complète impose la mise aux normes : tableau électrique différentiel, circuit dédié pour les gros appareils (plaque de cuisson, lave-linge), liaisons équipotentielles dans la salle de bain, prises de terre sur tous les circuits. Cette mise aux normes est non négociable pour la sécurité des occupants, et elle est systématiquement intégrée dans mes dossiers de rénovation complète. Budget mise aux normes électrique complète pour un studio : 2 500 à 5 000 € selon l'état du tableau existant et la complexité du câblage.

Le DPE et la rénovation énergétique. Depuis 2023, les studios classés G sont interdits à la location en France. Les studios F le seront à partir de 2025. Pour les propriétaires bailleurs, la rénovation thermique n'est plus optionnelle — c'est une obligation légale à anticiper. Dans un studio haussmannien, les principales déperditions thermiques viennent des fenêtres (simple vitrage à remplacer par du double vitrage en bois respectant le profil d'origine) et de la ventilation (absence de VMC dans les bâtiments anciens). L'isolation par l'intérieur des murs extérieurs est possible dans un studio, mais elle "grignote" 6 à 10 cm de largeur par mur isolé — dans un espace de 20 m², c'est une décision à peser soigneusement. Je propose toujours une simulation thermique avant de recommander une isolation intérieure dans un studio.

Liens utiles : Pour aller plus loin, notre guide des prix de rénovation au m² à Paris détaille les budgets par poste, et notre page devis vous permet d'obtenir une première estimation gratuite adaptée à votre studio.

Investissement locatif

Studio Paris investissement — rentabiliser la rénovation

Une part importante de mes clients sur les studios sont des investisseurs — propriétaires d'un ou plusieurs biens parisiens qu'ils souhaitent rénover pour la location meublée (LMNP). La logique est différente de la résidence principale : le budget doit être maîtrisé, les matériaux doivent résister à un usage intensif, et le résultat doit séduire une clientèle ciblée — étudiants, jeunes actifs, expatriés en mobilité professionnelle.

La rentabilité de la rénovation pour la location meublée. À Paris, un studio rénové se loue en moyenne 30 à 50% plus cher qu'un studio non rénové de même surface. Un studio de 22 m² dans le 11e arrondissement, non rénové, se loue autour de 900–1 000 €/mois. Le même studio après rénovation complète (mezzanine, cuisine équipée, salle de bain refaite) se loue 1 200 à 1 400 €/mois en LMNP meublé. Sur 12 mois, c'est un différentiel de 2 400 à 4 800 €/an — soit une rénovation à 35 000 € amortie en 7 à 15 ans, avant même de prendre en compte la valorisation du capital.

Ce que j'optimise spécifiquement pour la location. Pour un studio locatif, je privilégie les matériaux durables et faciles d'entretien : béton ciré hydrofugé plutôt que parquet, carrelage grand format dans la salle de bain avec joints époxy (résistants aux moisissures), électroménager encastré milieu de gamme (Bosch, AEG) plutôt que haut de gamme. Les finitions sont soignées mais pas précieuses — pas de marbre blanc dans la salle de bain, pas de parquet massif en chêne brut. L'enjeu est d'obtenir 90% de l'effet esthétique pour 60% du budget d'une résidence principale.

Le home staging intégré à la conception. Pour les studios destinés à la location ou à la revente rapide, j'intègre la réflexion "home staging" dès la phase de conception : teintes neutres et universelles, mobilier photographiable, espaces lisibles sur les photos. Un studio bien photographié sur AirBnB ou Leboncoin fait la différence entre 60% et 95% de taux d'occupation. Ce n'est pas de la cosmétique — c'est de la stratégie commerciale intégrée à l'architecture.

Cas clients

Avant / après — 3 studios parisiens transformés

Pour illustrer concrètement ce que peut apporter une mission d'architecte DPLG sur un studio parisien, voici trois projets récents — anonymisés — qui montrent la diversité des situations et des solutions.

Projet A — Studio 23 m², Paris 11e, budget 38 000 €. État initial : studio des années 1960, cuisine fermée de 4 m², salle de bain de 2,5 m², pièce principale sombre de 16,5 m². Hauteur : 2,75 m. Problème principal : la cuisine fermée mangeait un tiers de l'espace habitable et bloquait toute la lumière venant de la fenêtre principale. Solution : ouverture totale de la cuisine sur le séjour (cloison non porteuse supprimée), cuisine en linéaire 3 m avec bar-comptoir, mezzanine sur un tiers de la surface côté fenêtre avec bureau dessous, salle de bain refaite en douche à l'italienne micro-béton. Résultat : le studio est passé d'un espace de 16,5 m² habitable à un espace perçu de 23 m² ouvert, lumineux et organisé. Valeur locative : +420 €/mois.

Projet B — Studio 19 m², Paris 5e, budget 24 000 €. État initial : studio étudiant des années 1980, non rénové depuis 2003, électricité non aux normes, salle de bain vétuste. Hauteur : 2,50 m — mezzanine exclue. Contrainte budgétaire forte. Solution : lit escamotable dans bibliothèque sur mesure (6 500 €), mise aux normes électrique complète, nouvelle salle de bain en 2,8 m², cuisine équipée encastrée 2,20 m linéaire, peinture et béton ciré sols. Sans mezzanine possible, chaque euro a été concentré sur la multifonctionnalité — le lit escamotable libère 2,80 m² de séjour en journée. Résultat : studio loué 1 050 €/mois en LMNP (anciennement 780 €). Retour sur investissement à 8 ans.

Projet C — Studio 31 m², Paris 3e, budget 55 000 €. État initial : studio en attique, belle hauteur de 3,20 m, mais sans aménagement depuis l'achat. Vue sur toits. Clientèle cible : location courte durée haut de gamme. Solution ambitieuse : mezzanine structurelle sur acier avec lit king size et salle de bain privative en mezzanine (WC suspendu, douche effet pluie, vasque marbre vert), séjour au sol libéré pour un espace de vie complet, cuisine intégrée dans un meuble laqué blanc avec plan de travail marbre blanc, verrière intérieure entre le séjour et l'entrée. Résultat : studio classé 5 étoiles AirBnB, loué 180 €/nuit en moyenne, taux d'occupation 78%. Retour sur investissement à 4,5 ans.

Ces trois exemples illustrent un principe constant : l'architecte DPLG ne coûte pas plus cher — il optimise la dépense. Dans le Projet A, supprimer la cloison de cuisine a coûté 800 € et transformé l'espace plus que n'importe quelle finition premium. Dans le Projet B, le choix du lit escamotable plutôt d'une mezzanine impossible a sauvé le projet dans les contraintes de hauteur. Dans le Projet C, la cohérence esthétique de l'ensemble — matériaux, lumières, volumes — est ce qui justifie 180 €/nuit. C'est la signature d'une architecture pensée, pas assemblée.

Questions fréquentes

Rénovation studio Paris — vos questions

Pour un studio de 25 m² à Paris, le budget de rénovation varie selon le niveau de prestation. Rafraîchissement léger (peinture, sols, mise à jour salle de bain) : 15 000 à 22 000 € TTC. Rénovation complète standard (électricité, plomberie, cuisine, salle de bain, cloisons) : 30 000 à 45 000 € TTC. Rénovation optimisée avec mobilier sur mesure (lit escamotable, bibliothèque intégrée, cuisine équipée) : 40 000 à 55 000 € TTC. Les honoraires d'architecte (10–15 % du montant HT des travaux) s'ajoutent mais sont rentabilisés par la plus-value et la réduction des surcoûts de chantier.

Plusieurs solutions permettent de créer une séparation fonctionnelle dans un studio sans mur fixe. La mezzanine structurelle (si hauteur sous plafond ≥ 2,50 m) crée un espace de nuit au-dessus sans empiéter sur la surface au sol — budget 8 000 à 18 000 € selon la superficie. La bibliothèque double face sur roulettes sépare visuellement les espaces tout en offrant des rangements. Le rideau acoustique suspendu au plafond dans un rail dissimulé est la solution la moins coûteuse (1 500 à 3 000 €). Teresa Lombardo conçoit la solution optimale selon la configuration spécifique du studio.

Un architecte n'est pas légalement obligatoire pour un studio (inférieur à 150 m²). Cependant, l'intervention d'une architecte DPLG comme Teresa Lombardo apporte une valeur directe sur les petites surfaces : optimisation du plan pour maximiser l'espace perçu, conception de mobilier sur mesure non disponible dans le commerce, gestion de la copropriété et des éventuels permis, coordination des artisans pour respecter planning et budget. L'architecte représente 10 à 15 % du montant HT des travaux mais génère en moyenne 20 à 30 % de plus-value supplémentaire.

La rentabilité brute d'un studio entièrement rénové à Paris varie de 4,5 à 7 % selon l'arrondissement et le type de location. En location nue longue durée, un studio de 25 m² bien rénové dans le 11e se loue 1 000 à 1 200 €/mois, soit une rentabilité brute de 5 à 6 % pour un bien acheté aux prix actuels. En location meublée courte durée (Airbnb, Abritel) dans un arrondissement touristique (5e, 6e, Marais), le même studio peut générer 60 à 120 €/nuit avec un taux d'occupation de 75 à 85 %, soit une rentabilité brute de 8 à 12 %.

La rénovation d'un studio en copropriété nécessite quelques précautions pour éviter les conflits. Informer le syndic par lettre recommandée avant le démarrage des travaux. Respecter les horaires de chantier du règlement de copropriété (généralement 8h–18h en semaine, 9h–12h le samedi). Protéger les parties communes (ascenseur, couloirs, escaliers) avec des protections de chantier. Obtenir l'accord préalable de l'AG pour tout travaux impactant les parties communes ou la structure. Teresa Lombardo prend en charge toutes ces démarches dans le cadre de sa mission.

Le cout rénovation studio 20m2 à Paris varie de 12 000 à 36 000 € selon le niveau de prestation. Rafraîchissement : 12 000–18 000 €. rénovation studio 20m2 complète : 20 000–36 000 €. La rénovation studio 20m2 haut de gamme avec mobilier intégré atteint 40 000 €. Le coût des travaux studio 20m2 est plus élevé au m² qu'un grand appartement car les coûts fixes (cuisine, SDB, électricité) se mutualisent sur moins de surface. renover un studio de 20m2 avec architecte DPLG permet d'optimiser chaque euro. Studio renover à Paris : le premier échange avec Teresa Lombardo est gratuit.

La Rénovation studio 15m2 coûte 18 000 à 40 000 € — coût au m² plus élevé car les coûts fixes restent incompressibles. La Rénovation studio 25m2 atteint 28 000 à 65 000 €. La rénovation studio 30m² représente 34 000 à 78 000 € en haut de gamme. Le budget chantier studio augmente avec la surface mais le coût au m² décroît légèrement grâce à la dégressivité. rénovation studio prix et prix rénovation studio : les fourchettes s'entendent travaux TTC hors honoraires architecte (10–15 % du montant HT des travaux). Refaire un studio à neuf prix complet (travaux + architecte + mobilier sur mesure) : prévoir 1 800 à 2 500 €/m².

Non, la hauteur sous plafond est déterminante. Pour une mezzanine habitable (hauteur assise confortable au niveau du lit), il faut idéalement 2,80 m minimum. En dessous de 2,60 m, une mezzanine est techniquement possible mais avec une hauteur de 1,10 m sous le plafond — acceptable pour dormir, pas pour s'asseoir librement. Pour une hauteur inférieure à 2,50 m, je déconseille la mezzanine et propose plutôt un lit escamotable ou un lit en estrade avec rangements dessous. La première étape de tout projet studio est toujours une mesure précise de la hauteur au plafond au point le plus bas (souvent au-dessus de la salle de bain ou de la cuisine).

Oui, dans la plupart des cas. La création d'une cloison intérieure dans un studio relève de travaux d'aménagement intérieur qui ne nécessitent pas de permis de construire, et ne requièrent pas non plus d'autorisation de la copropriété si le mur n'est pas porteur et ne touche pas aux parties communes. En revanche, si la surface créée dépasse 20 m² en Île-de-France, une déclaration préalable peut être exigée. Et si la cloison modifie l'aspect de l'immeuble (fenêtres visibles de l'extérieur divisées par la cloison), l'ABF peut avoir son mot à dire. Teresa Lombardo vérifie toujours ces points lors de la visite conseil (450 €, rapport écrit de 3 à 5 pages sous 48h).

L'architecte DPLG est titulaire d'un titre protégé par la loi — il peut signer des permis de construire, engager sa responsabilité décennale sur la conception, et superviser des travaux structurels (mezzanine ancrée dans les murs, ouverture d'un mur porteur). L'architecte d'intérieur ne peut pas faire cela. Pour un studio avec mezzanine ou ouverture de mur porteur, un architecte DPLG est donc indispensable. Pour une rénovation purement décorative (peinture, cuisine, salle de bain sans modification structurelle), un architecte d'intérieur peut suffire. Teresa Lombardo est DPLG et HMONP — elle peut intervenir sur tous les types de projets, y compris les plus complexes structurellement.

Pour une rénovation complète d'un studio de 20 à 28 m² à Paris, le chantier dure en général 6 à 10 semaines, hors délais de fabrication du mobilier sur mesure. La phase de conception et de consultation des entreprises prend 4 à 8 semaines supplémentaires. Le délai total entre la première visite et la livraison du studio est donc de 4 à 6 mois dans les cas standard. Les projets avec mezzanine ou ouverture de mur porteur peuvent allonger ce délai de 2 à 4 semaines en raison de l'étude structurelle et du dossier copropriété. Teresa Lombardo établit un planning détaillé dès le démarrage du projet.

Aller plus loin

Guides connexes

Chaque studio parisien est unique — configuration, exposition, hauteur sous plafond, contraintes de copropriété. Teresa Lombardo commence toujours par un relevé précis et un plan coté avant toute proposition d'aménagement. Cette étape, souvent négligée, est celle qui distingue un projet abouti d'un chantier en reprises. La première visite est offerte, sans engagement.

Un projet similaire

Appartement haussmannien 80m² — Paris

Petit appartement ancien optimisé avec cuisine ouverte sur salon.

Voir le projet →

Votre studio parisien

Devis gratuit — répondons à votre projet

Teresa Lombardo conçoit des studios parisiens optimisés : plan, mobilier sur mesure, suivi de chantier. Devis gratuit, premier échange sans engagement.

Permis de construire & déclarations Maîtrise d'œuvre & suivi chantier Honoraires architecte transparents
Demander un devis gratuit →

contact@teresalombardo-architecte.com  ·  06 18 27 88 48

← Voir tous les guides rénovation